
☆敷地広々129坪
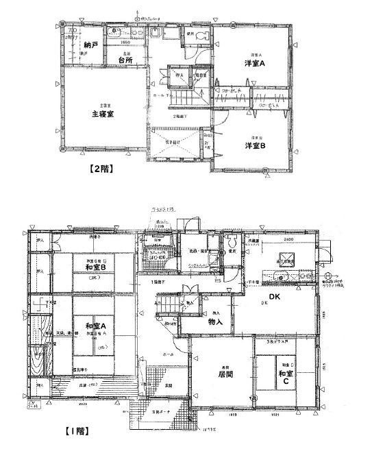
☆2階にもキッチン・トイレ有り
☆収納スペース充実
☆車もゆったり5台以上駐車できます!

| 物件番号 | 01-B0077 |
| 種別 | 中古住宅 |
| 住所 | 岡山市中区円山 |
| 価格 | 3250万円 |
| 土地面積 | 426.68m² (129.07坪) |
| 建物面積 | 161m² (48.7坪) |
| 間取り | 7DKK |
| 築年 | 1996/3 |
| 学区 | 富山中・富山小 |

☆敷地広々129坪
☆2階にもキッチン・トイレ有り
☆収納スペース充実
☆車もゆったり5台以上駐車できます!
| 計測方法 | 公簿 |
| 土地面積 | 426.68m² (129.07坪) |
| 土地権利 | 所有権 |
| 地目 | 宅地 |
| 地勢 | 平坦 |
| 環境 | 住宅地 |
| 建物面積 | 161m² (48.7坪) |
| 構造・階数 | 木造・2階 |
| 間取り | 7DKK |
| 築年 | 1996/3 |
| 駐車場 | 有り |
| 都市計画 | 市街化 |
| 防火地域 | |
| 用途地域 | 第一種低層住居専用地域 |
| 建ぺい率 | 50% |
| 容積率 | 100% |
| 接道① | 西6m公道 |
| 接道② | |
| 接道③ |
| 水道 | 公営 |
| ガス | |
| 汚水 | 公共下水 |
| 雑排水 | 公共下水 |
| 電気 |
| 現況 | 空家 |
| 引き渡し | 相談 |
| 交通 | バス/嶽バス停 徒歩3分 |
| 取引形態 | 仲介 |